THE Chelsie

Single Family | Finished Basement

BEDS
5

BATHS
3.5

GARAGE
3

FINISHED
4,026 FT²

TOTAL
4,026 FT²

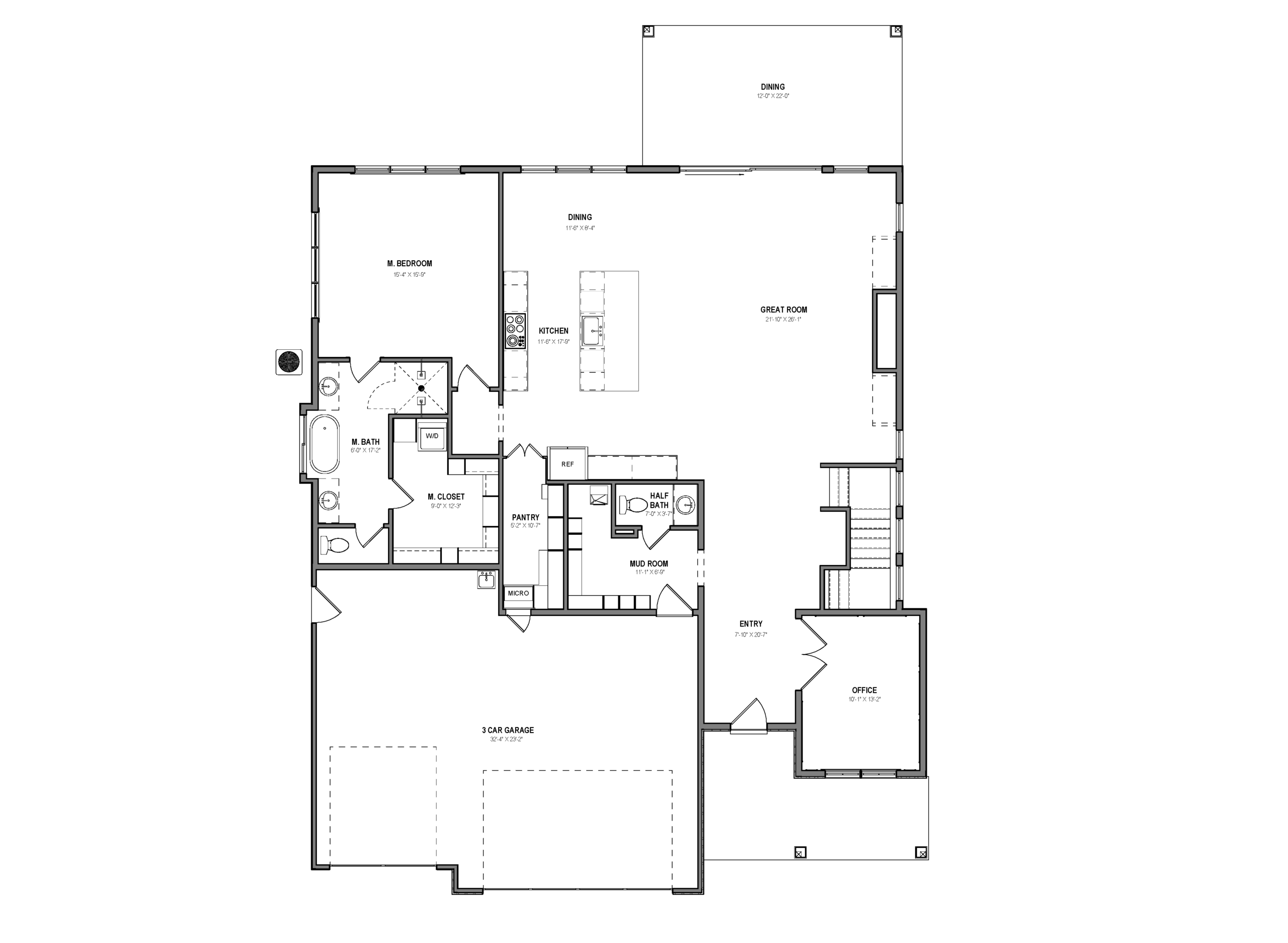
Main Floor

The main floor consists of an office just off the wide entryway. The great room opens to a wall of huge sliding doors and grand windows allowing for a bright main floor. The kitchen looks out over the great room with a large walk in pantry and Costco door. Behind the kitchen is the owner suite with a walk in closet and large master bath.

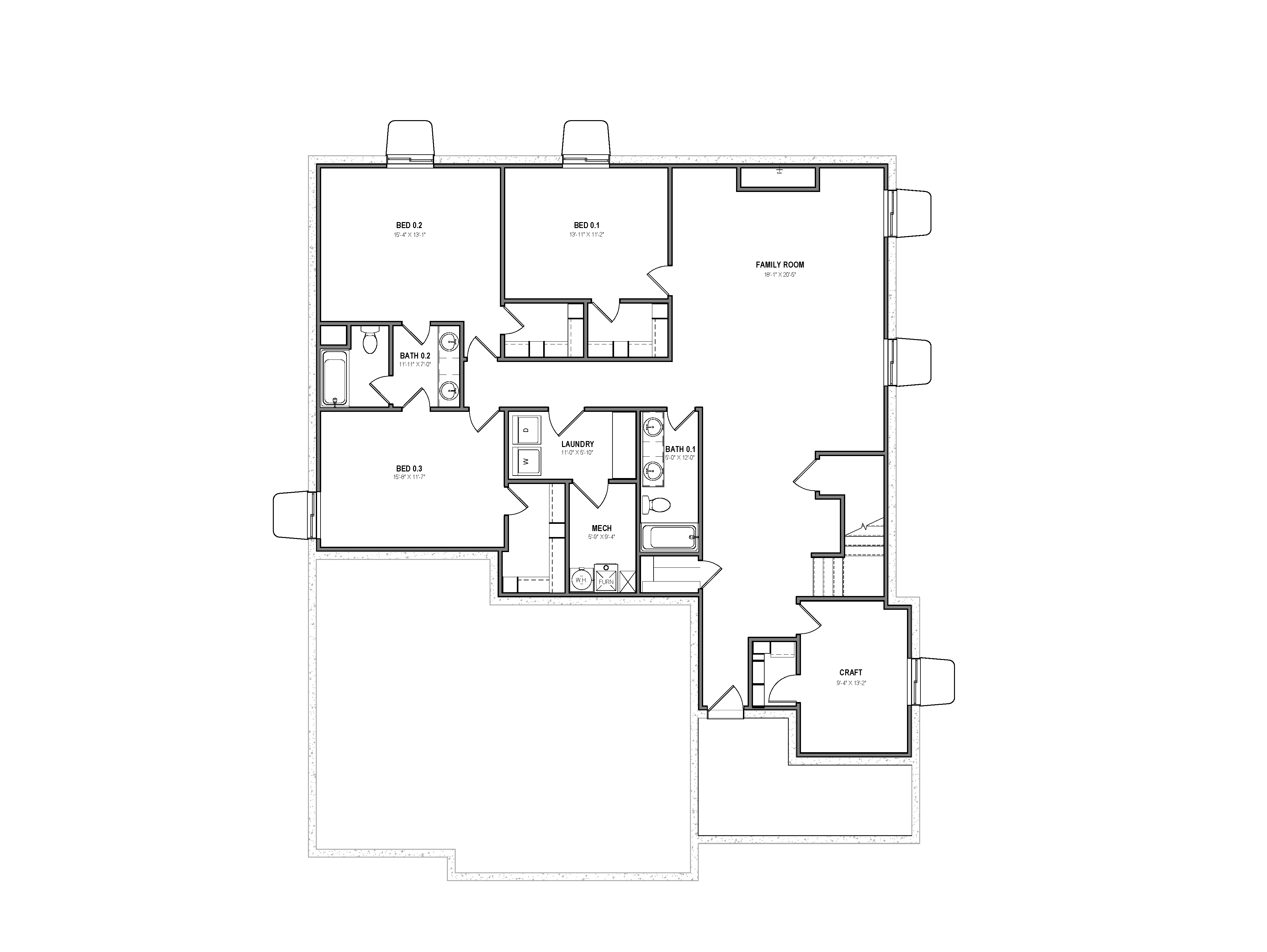
Basement

The basement floor on this model opens up with a large media room and continues on to four bedrooms and two bathrooms, one of which is a strategically placed jack-and-jill. The main laundry room, as well as plenty of storage, can also be found on this level.

Logan Brown Real Estate

Logan Brown

General Contractor

[email protected]   |   435-213-6929